Giles Free-Standing Ventless Hoods are certified Type-1 recirculating hoods featuring our proven Ventless Technology. Should there be need to add hood space in your kitchen, one of these alternatives possibly can avoid the need for expensive kitchen modifications & costly ductwork required to vent an additional hood to the outside. While not suitable for every situation … these hoods often can be used to develop food service opportunities in many non-traditional sites where previously they were not feasible, or impossible … traditional vented hoods, however, should always be the first alternative considered.
Thank you for viewing our quality commercial restaurant equipment online at The Foodservice Equipment Depot. We are your trusted food equipment supply store in Canada based out of Calgary, AB. The FED has answers for your how-to’s, product guides, specifications, drawings, discount pricing and shipping questions. If you are wanting to buy used or new food equipment in stock at our warehouse, please contact us today for a quote.
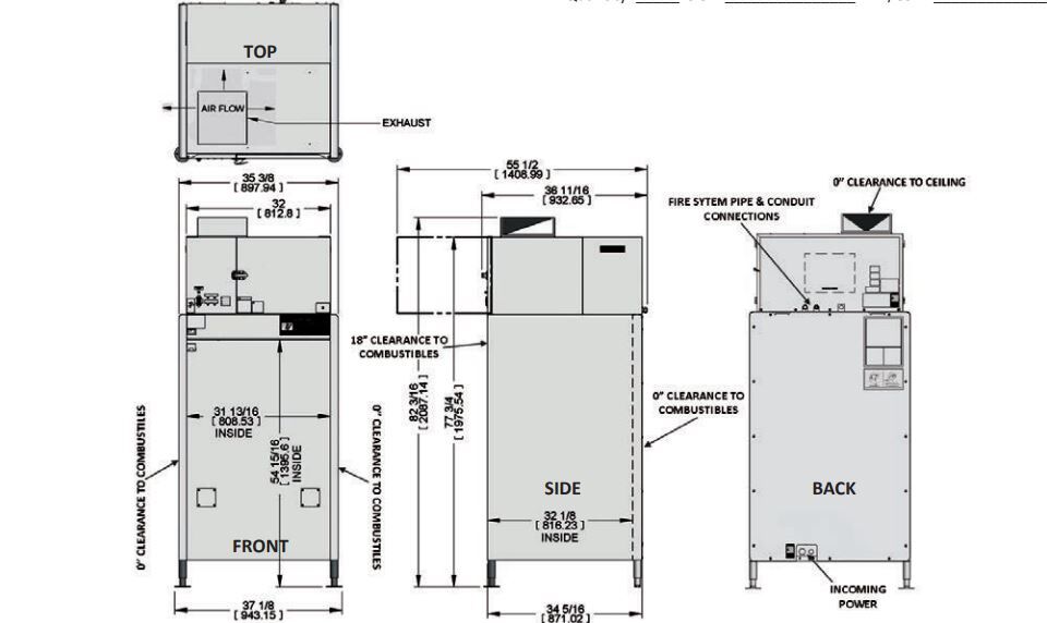
Giles GVH-F Specs
Manufacturer Giles
Model Number GVH-F
Weight 475 lbs
Depth 36.69″
Height 82.19″
Width 37.13″
Certifications CE




