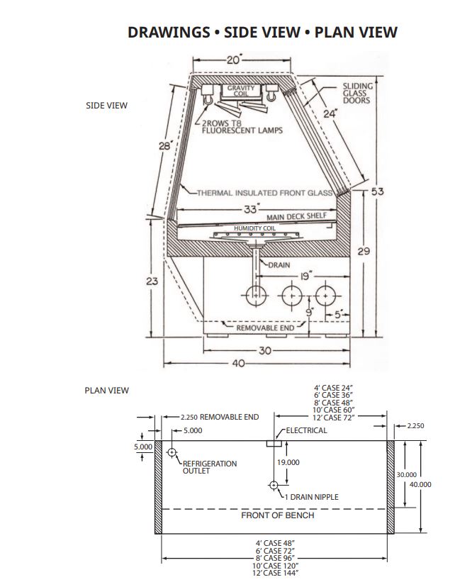
Designed to operate in an environment of 75 degrees Fahrenheit, the Howard McCray R-CMS40E-12-LED full-service red meat case includes an air-insulated baffle to prevent water from dripping into the food display. Ideal for red meat, this unit comes with thermal-insulated front glass and two rows of LED lights for visibility. Because the refrigeration system is designed for remote installation, it does not add heat and noise to the area.
The system includes an upper humidity coil and copevap system, eliminating the need for a condensate pan. Food must be cooled before being placed inside, as this stainless steel Howard McCray R-CMS40E-12-LED red meat case is intended to keep products cold, not cool them on its own. The rear compression jamb on the double-pane doors prevents air leaks, reducing energy costs. This unit is available in 4-, 6-, 8-, 10-, and 12-foot lengths, and in white, black, and stainless steel; please contact customer care to specify a different model.
Thank you for viewing our quality commercial restaurant equipment online at The Foodservice Equipment Depot. We are your trusted food equipment supply store in Canada based out of Calgary, AB. The FED has answers for your how-to’s, product guides, specifications, drawings, discount pricing and shipping questions. If you are wanting to buy used or new food equipment in stock at our warehouse, please contact us today for a quote.
Manufacturer: Howard-McCray
Model: R-CMS40E-6C-BE-LED
Height: 53″
Width: 75.5″
Depth: 40″
Cube: 128
Weight: 693 lbs
Service Type: Full Service
Width (side – side): 73″ – 78″
Interior Finish: White
Interior Front: Curved Glass
Refrigeration: Remote (refrigeration Not Included)
Exterior Finish: All Black Exterior




