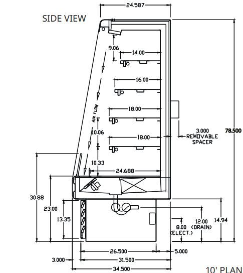
Dairy Open Merchandiser, 75″W, 78-1/2″H, endless design, self-contained refrigeration, (4) rows of lit shelves, LED lighting, straight end panels, choice of (4) end panel designs, (drain required), stainless steel exterior & interior, 404A refrigerant, 1 HP, 115/208-230v/60/1-ph, 16.0 amps, cord & plug, NEMA L14-20P
Thank you for viewing our quality commercial restaurant equipment online at The Foodservice Equipment Depot. We are your trusted food equipment supply store in Canada based out of Calgary, AB. The FED has answers for your how-to’s, product guides, specifications, drawings, discount pricing and shipping questions. If you are wanting to buy used or new food equipment in stock at our warehouse, please contact us today for a quote.
Howard-McCray SC-OD35E-6-S-LED Specifications
Spec Attribute Spec Value
Manufacturer Howard-McCray
Color Silver
Compressor Location Bottom
Compressor Type Self Contained
Depth (in) 34.5
Design Vertical
Height (in) 78.5
Hertz 60
Number of Levels 5
Phase 1
Product Open Air Merchandisers
Product Type Commercial Refrigeration
Rating Better
Series SC-OD Series
Service Type Self Service
Special Features LED Lighting
Voltage 115/208/230
Warranty 1-year Parts & Labor; 5-year Compressor
Width (in) 75
Weight 1175.00






